Te koop Residential Plot Costa Del Sol Mijas Costa € 220.000,-
Urban Plot for Sale in Cerrado del Águila – Mijas
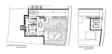
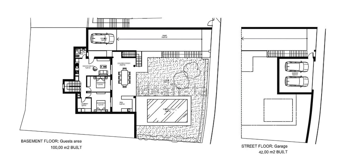
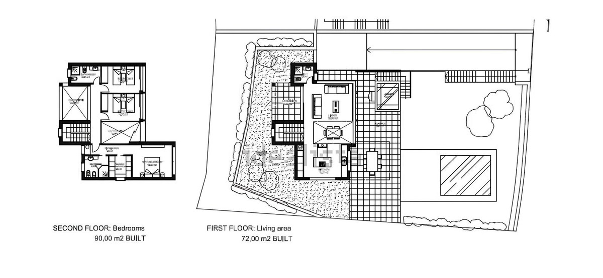
Urban plot of 600 m² with a buildability of 0.24, allowing construction of up to 144 m². It comes with a building license available and a construction project from 2005, which must be reviewed and updated according to current regulations.
South-facing with panoramic views of Fuengirola, Mijas, and the sea, ideal for enjoying natural light throughout the day. Perfect for a single-family home with garden, pool, and garage.
Located next to Cerrado del Águila Golf, in a quiet setting surrounded by nature. Only 5 km from the center of Fuengirola and close to the new Gran Parque de la Costa del Sol.
Our fees are included in the sale price. The price does not include costs associated with the purchase, such as notary, registry, and applicable transfer taxes (ITP, VAT, AJD).
meer info