Te koop Penthouse Costa Del Sol New Golden Mile € 2.195.000,-
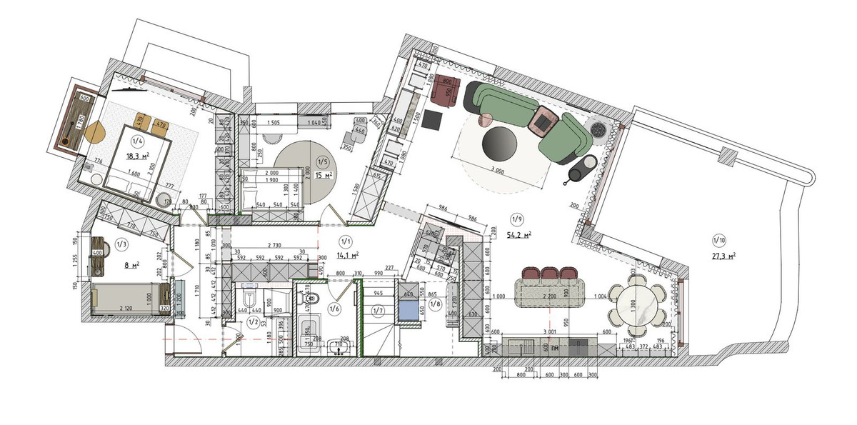
TORRE BERMEJA, PENTHOUSE UNDER RENOVATION.
Torre Bermeja is a well designed 5 star luxury beachfront complex situated in Estepona with dazzling views of the Mediterranean Sea.
The urbanization is ideally situated close to all amenities with a fantastic choice of 5 professional golf courses within 3 km and Estepona town centre only a 5 minute drive away.
The selection of apartments and penthouses that are for sale in Torre Bermeja have been beautifully designed using only the finest and highest quality materials combined with luxury finishes. The properties would make exquisite holiday homes or magnificent permanent residences offering all year round sophisticated living.
Torre Bermeja offers everything you would expect from a 5 star resort; 24hr security, 2 fabulous communal swimming pools, a gym and beautiful, well maintained, tropical gardens with stunning springs and water features. The complex is set right next to the beach in a private position with one of the best well-kept beach side walks on the coast.
meer info