Te koop Herenhuis Costa Del Sol Guadalmina Alta € 1.295.000,-
Semi-detached house with pool in Guadalmina Alta. This semi-detached house has been renovated with top-quality materials, combining Balinese and Mediterranean influences. It stands out for its brightness, harmony, and functional design, offering a warm and serene atmosphere.
A true paradise for those who appreciate architecture, interior design, and the energy of feng shui. The private, heated saltwater pool can be enjoyed all year round, becoming the heart of the home. The integrated aerothermal system provides efficient climate control in every room, adaptable to the needs of each moment.
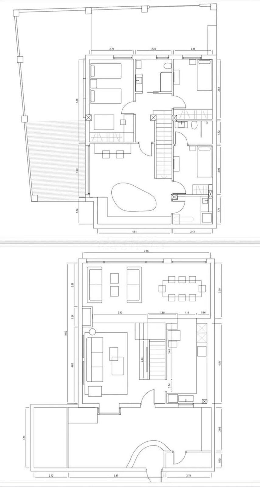
Layout of the property
The property is distributed over three levels: main, upper, and ground floor, with a total built area of 282.98 m².
Main floor — 138.55 m²
Interior area: 67.10 m²
Spacious living-dining room with views of La Concha, very bright thanks to its partially glazed ceiling. Direct access to the terrace through a modern three-panel sliding door, which opens completely at floor level. Includes built-in cupboards for storage.
Custom-made oak kitchen, equipped with high-end appliances (Haier, Siemens, and Bosch). Dekton countertops and iconic faucets throughout the home.
Outdoor area: 71.45 m²
Entrance patio with microcement finish, sunny living area all day long, planters, and outdoor shower with hot and cold water.
Full bathroom ideal for outdoor or pool use.
Heated saltwater pool (3.70 x 3.75 m) with winter cover.
Wooden pergola with chill-out area and spectacular views of La Concha.
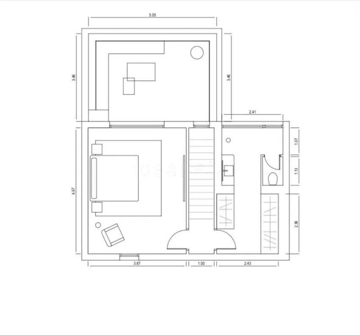
First floor — 43.17 m²
Interior surface area: 25.25 m²
Master bedroom with open views of La Concha. Microcement bed base and 200x200 cm double bed with integrated electrical outlets. Electric blinds and double-glazed windows. Built-in oak wardrobes.
Master bathroom with double sink, large closets, and an elegant wet area with shower and freestanding bathtub.
Outdoor area: 17.92 m²
Terrace ideal for sunbathing or enjoying starry nights, equipped with hot and cold shower. Can be enclosed.
Ground floor — 101.26 m²
Indoor area: 67.10 m²
Bedroom with built-in wardrobes and en-suite bathroom with shower.
Second bedroom with three single beds, three built-in wardrobes, and full bathroom with bathtub.
Third large bedroom (resulting from combining two rooms), currently used as a playroom, with eight built-in wardrobes and direct access to the porch.
Separate laundry room with washing machine, Haier dryer, and storage space. All bathrooms and the laundry room have towel radiators.
Outdoor area: 39.20 m²
Covered porch with premium artificial grass garden area and garage space, currently used as a skate ramp.
Other details
Ideal for families or those who wish to entertain guests without sacrificing privacy. The property has a driveway, parking at the door, and a garage.
Located opposite the Guadalmina Golf Club, in a very quiet area, just a few minutes from all amenities.
meer info