Te koop Finca - Cortijo Costa Del Sol Casarabonela € 795.000,-
Exclusieve aanbieding!
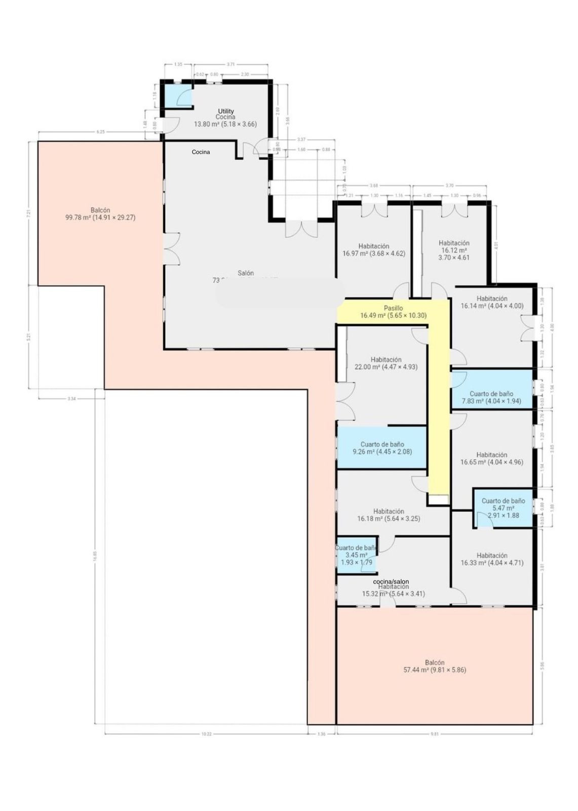
Dit ruime en comfortabele landhuis (Cortijo) is perfect voor een groot gezin, als luxe vakantiehuis of als investering met aanzienlijke verhuurmogelijkheden dankzij het onafhankelijke gastenverblijf. De woning verkeert in uitstekende staat en combineert authentieke charme met modern comfort.
De adembenemende open indeling van de woonkamer, eetkamer en keuken vormt het hart van het huis.
Hoge plafonds en grote ramen: deze architectonische kenmerken zorgen de hele dag voor maximale lichtinval en accentueren het ruimtelijke gevoel. Geniet op koelere avonden van de warmte van de open haard, omringd door charmante terracotta vloeren en de prachtige Spaanse houten voordeur die de landelijke sfeer benadrukt.
De keuken is van alle gemakken voorzien en loopt naadloos over in de woonkamer, perfect voor gezelligheid en entertainment. Achter de keuken bevindt zich een ruime keuken/bijkeuken en een gastentoilet.
Vanuit de woonkamer opent u de deuren naar het overdekte hoofdterras. Dit wordt uw favoriete plek om te dineren en te genieten van het spectaculaire uitzicht op de glooiende bergen.
Een kleine trap leidt naar een gang die naar het hoofdslaapkamergedeelte leidt. Deze kamers zijn ruim en voorzien van praktische inbouwkasten, die optimale opbergruimte bieden.
Uniek aan deze finca is het volledig afsluitbare en onafhankelijke gastenverblijf. Het is toegankelijk via het hoofdgebouw, maar heeft ook een eigen ingang, waardoor het ideaal is voor verhuur of als privédomein voor gasten.
Dit appartement beschikt over:
* 2 ruime slaapkamers, elk met een eigen badkamer.
* keuken/woonkamer
* Een groot privéterras met fantastisch uitzicht.
Deze gastenaccommodatie biedt een uitstekende mogelijkheid om extra inkomsten te genereren door middel van vakantieverhuur (B&B/Vakantiehuis).
Licencia de Primera Ocupación (LPO) aanwezig.
De woning is voorzien van alle moderne gemakken:
Airconditioning en centrale verwarming.
Aangesloten op het elektriciteitsnet en voorzien van zonnepanelen.
Aangesloten op het openbare drinkwaternet.
Er is een goede internetverbinding beschikbaar.
Privézwembad en terras: de perfecte plek om af te koelen tijdens de warme zomermaanden, met een adembenemend uitzicht over de vallei.
Buitenbar en barbecueplek: Gelegen bij het zwembad, ideaal voor het organiseren van feesten, barbecues en lange zomeravonden.
De tuin is beplant met volwassen olijfbomen en verschillende fruitbomen.
Er is privéparkeergelegenheid op het terrein.
De toegangsweg is grotendeels geasfalteerd. Alleen de laatste 600 meter zijn goed onderhouden onverharde wegen.
Slechts 15 minuten rijden naar de charmante dorpjes Alozaina en Casarabonela.
De internationale luchthaven van Malaga ligt op 45 minuten rijden, zodat u snel en eenvoudig van en naar uw thuisbasis kunt reizen.
Finca - Cortijo, Casarabonela, Costa del Sol.
7 slaapkamers, 4,5 badkamers, bebouwd 362 m², terras 150 m².
Ligging: Landelijk, Dichtbij de stad.
Oriëntatie: Oost, Zuidwest.
Staat: Goed.
Zwembad: Privé.
Klimaatregeling: Airconditioning, Centrale verwarming, Open haard.
Uitzicht: Bergen, Platteland, Panoramisch, Tuin.
Kenmerken: Inbouwkasten, Privéterras, Gastenappartement, Berging, Ensuite badkamer, Dubbel glas.
Meubilair: Optioneel.
Keuken: volledig ingericht.
Tuin: Privé.
Parkeren: Privé.
Nutsvoorzieningen: elektriciteit, drinkwater, gas, fotovoltaïsche zonnepanelen.
Categorie: Wederverkoop.
meer info