Te koop Vrijstaande Villa Costa Del Sol Puerto De La Torre € 375.000,-
Contemporary design in the middle of nature
We present a single-family house located in Arroyo del León, Puerto de la Torre (Málaga). A project that harmoniously combines modern architecture, functionality and connection with the natural environment.
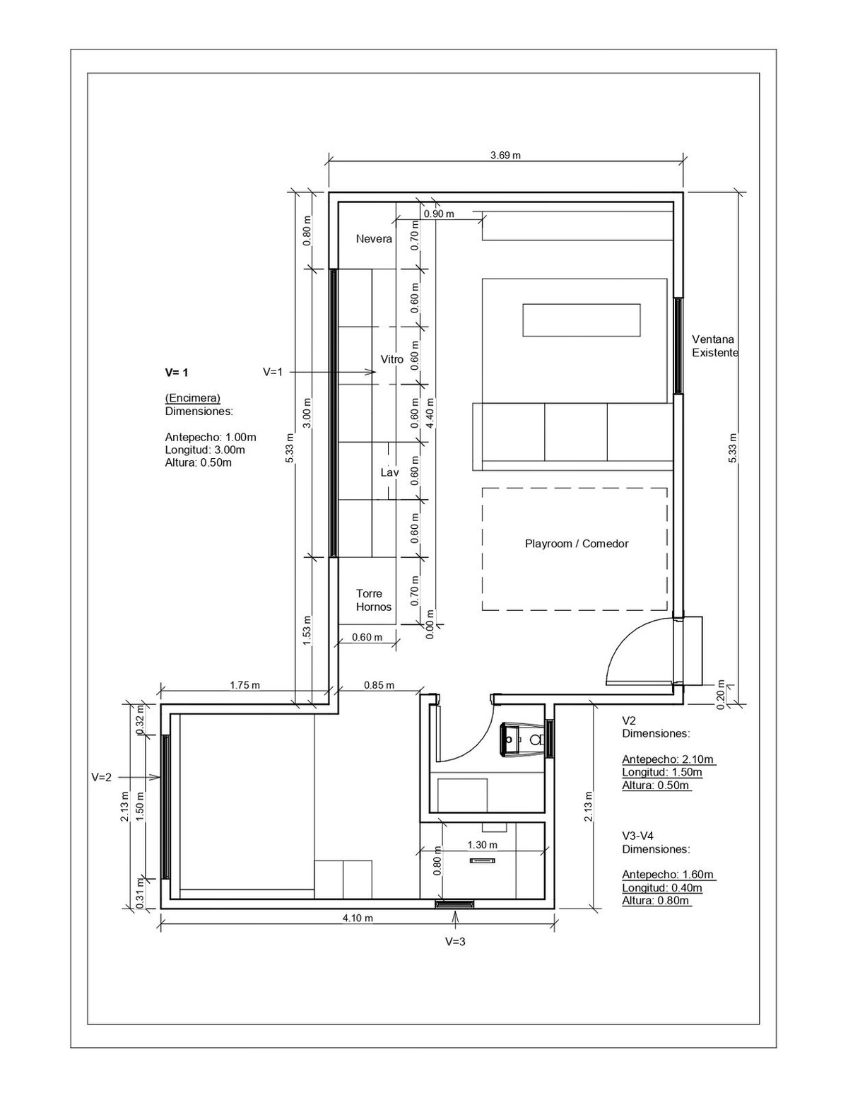
Built on one floor and with an interior area of approximately 36 m², this home has been designed to offer comfort, efficiency and style. Its distribution includes:
Open kitchen with integrated dining and living room.
Master bedroom plus an additional versatile space
Spa-like bathroom with micro-cement finishings
Natural lighting and interior design with noble materials.
Privileged surroundings:
Located in a quiet residential area, surrounded by nature and perfectly connected to the center of Malaga and the coast. Ideal for those looking to live with calm, quality and style, without giving up the proximity to the city.
Only 9 km from the center of Malaga
16 km from the airport
12 km from La Misericordia Beach
Close to golf courses, wellness centers and leisure areas.
León 3 is not just a house, it is a way of living: bright, practical and in harmony with the landscape.
meer info